Anhörung und Mitwirkung / Strassenprojekt Erschliessung Überbauung Parzelle Nr. 2325 der Ortsgemeinde Montlingen inklusive Verbreiterung Einlenker Alter Kirchweg in Oberrieterstrasse
Der Gemeinderat Oberriet lädt die Bevölkerung ein, zu folgendem Projekt im Rahmen der Mitwirkung Stellung zu nehmen:
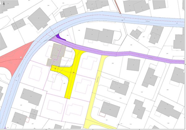
Strassenprojekt Erschliessung Überbauung Parzelle Nr. 2325 der Ortsgemeinde Montlingen inklusive Verbreiterung Einlenker Alter Kirchweg in Oberrieterstrasse
Nach Art. 33bis des kantonalen Strassengesetzes (sGS 732.1, abgekürzt StrG) werden beim Bau von Strassen bzw. beim Erlass von Teilstrassenplänen nach- und nebengeordnete Planungsträger rechtzeitig angehört (Abs. 1) und die zuständige Behörde sorgt für eine geeignete Mitwirkung der Bevölkerung (Abs. 2).
In diesem Sinne wird das Strassenprojekt vom Donnerstag, 12. Februar 2026, bis Freitag, 13. März 2026, der Mitwirkung unterstellt. Die Unterlagen können während dieser Zeit im Rathaus Oberriet, Hochbauamt, Büro Nr. 23 im 2. Geschoss, eingesehen werden. Die vollständigen Planunterlagen stehen auch nachfolgend digital zur Einsichtnahme bereit.
Die Mitwirkung hat schriftlich zu erfolgen an:
Gemeinderat Oberriet
«Mitwirkung TSP Überbauung OG Montlingen»
Staatsstrasse 92
9463 Oberriet
Der Gemeinderat dankt für die konstruktive Mitwirkung. Bei allfälligen Fragen steht Ihnen das Hochbauamt Oberriet gerne zur Verfügung.
Zugehörige Objekte
| Name | |||
|---|---|---|---|
| Teilstrassenplan (PDF, 1.13 MB) | Download | 0 | Teilstrassenplan |
| Situation (PDF, 736 kB) | Download | 1 | Situation |
| Normalprofil (PDF, 258 kB) | Download | 2 | Normalprofil |
| Querprofile (PDF, 361 kB) | Download | 3 | Querprofile |
| Längenprofil (PDF, 343 kB) | Download | 4 | Längenprofil |
| Werkleitungspläne (PDF, 587 kB) | Download | 5 | Werkleitungspläne |
| Schleppkurvenplan 1 (PDF, 360 kB) | Download | 6 | Schleppkurvenplan 1 |
| Schleppkurvenplan 2 (PDF, 359 kB) | Download | 7 | Schleppkurvenplan 2 |